082-299-6424
定休日:水曜日、年末年始
営業時間:9:00~18:00
ハウスドゥの売りたい
ハウスドゥの店舗情報
お客様がお気に入りに登録された物件を最大30物件まで、30日間保存できます。
価格
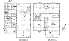
土地面積
建物面積
駅徒歩
間取り
3 件 / 全46件
チェックした物件をまとめて
1,990万円
所在地
交通
広島電鉄宮島線 『山陽女学園前駅』 まで徒歩10分
3,380万円
広島電鉄宮島線 『楽々園駅』 まで徒歩46分広島電鉄宮島線 『山陽女学園前駅』 まで徒歩53分
3,180万円
広島電鉄宮島線 『山陽女学園前駅』 まで徒歩20分広島電鉄宮島線 『楽々園駅』 まで徒歩23分JR山陽本線 『廿日市駅』 まで徒歩26分
店頭ではHPに掲載できない物件を併せて 700件をご案内できます!
店頭で
ご希望にマッチした物件や、新着・値下げ情報を 即日メールにてお届けします!
Webで